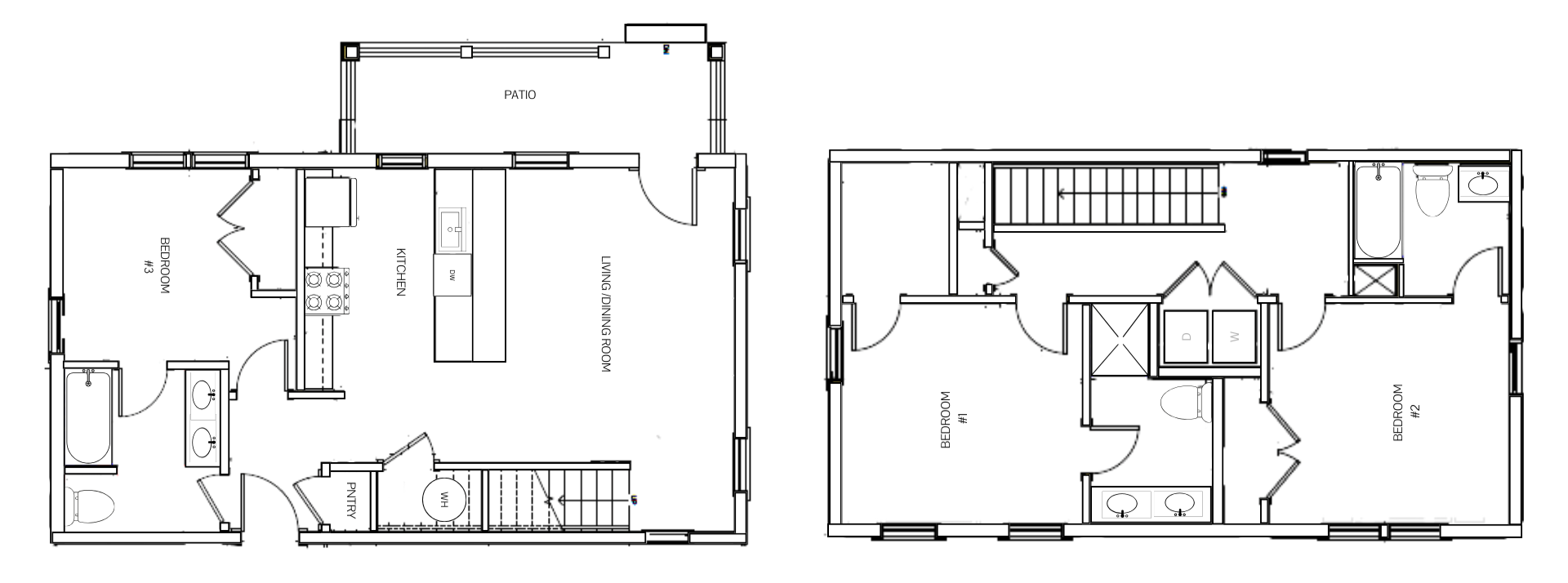
Alder

3 Beds 3 Baths 1,400 Sq Ft

The Alder is the largest plan offered, combining generous space, comfort, and modern design with an easy, livable layout. This three-bedroom, three-bath home features a primary suite on the main level, along with an open first floor where the kitchen, dining, and living areas flow naturally while maintaining privacy where it matters most. Upstairs, two spacious bedrooms each include a full bathroom, making the plan well suited for families, guests, or shared living. An oversized front porch and thoughtful separation of spaces create a home that feels both welcoming and highly functional.

Previous
Previous

Waxwing