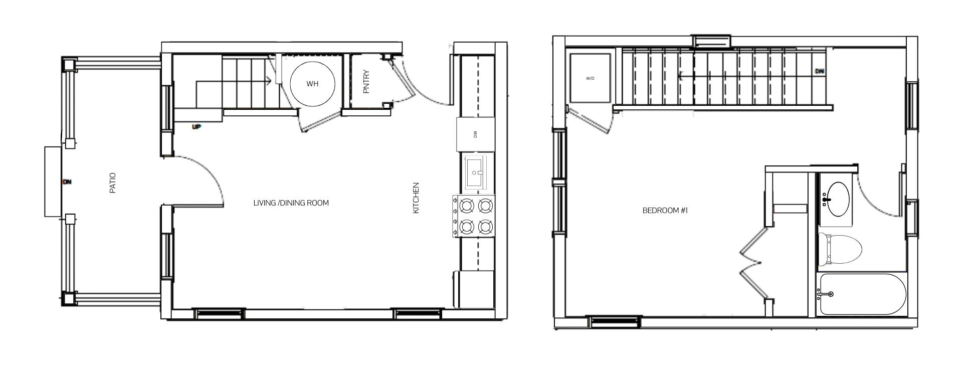
Azalea

1 Bed 2 Bath 640 Sq Ft

Designed with today’s lifestyles in mind, the Azalea offers a smart balance of comfort and flexibility. Located in the heart of Northpoint, this thoughtfully planned home pairs a quiet first-floor flex space, ideal for working from home or focused study, with comfortable living areas that feel connected yet private. Upstairs, well-appointed bedrooms, a versatile loft, and conveniently located laundry support everyday life with ease. Just minutes from downtown, Northpoint was created to offer attainable homeownership without sacrificing design, walkability, or community. Making the Azalea a natural fit for those who value both where they live and how they live.

Next
Next

Chickadee